Minister Rodziny, Pracy i Polityki Społecznej przyznał gminie dofinansowanie w wysokości 600.000,00 zł. Gmina Rzepin przeznaczy na ten cel środki własne w wysokości 373.700,00 zł. Łączny koszt realizacji projektu to kwota 973.700,00 zł !
W żłobku uruchomionych zostanie 30 miejsc dla dzieci w wieku do lat 3.
''MALUCH + ''2018 !
Celem Programu jest zwiększenie dostępności terytorialnej i finansowej miejsc opieki w żłobkach, klubach dziecięcych i u dziennych opiekunów dla wszystkich dzieci, w tym dzieci niepełnosprawnych oraz wymagających szczególnej opieki.
Program przyczynia się – w sposób pośredni – do realizacji Strategii na rzecz inteligentnego i zrównoważonego rozwoju sprzyjającego włączeniu społecznemu „EUROPA 2020”. Strategia ta wskazuje, że jednym z priorytetów jest rozwój sprzyjający włączeniu społecznemu, zaś celem jest zwiększenie stopy zatrudnienia. Stąd też, należy prowadzić działania sprzyjające zatrudnieniu kobiet, a w tym względzie duże znaczenie ma m.in. zapewnienie dostępu do opieki nad dziećmi.
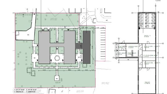
Wizualizację żłobka można zobaczyć poniżej .






Napisz komentarz
Komentarze